Kaufpreis 159.900,00 €
Provision 3,57% inkl. MwSt.
Wohnfläche 231,52 qm
Grundstück 265 qm
Adresse Kilianstr. 5 - 74532 Oberaspach-Ilshofen
| Objektdaten | |
|---|---|
| Kaufpreis | 159.900 € |
| Wohnfläche | 231,52 m2 |
| Grundstück | 265 m2 |
| Zimmer | 15 |
| Objektdaten | |
|---|---|
| Baujahr | vor 1900 |
| Heizungsart | Gas-Heizung |
| Energieausweis | - |
| Bezugsfrei | 1. Quartal 2026 |
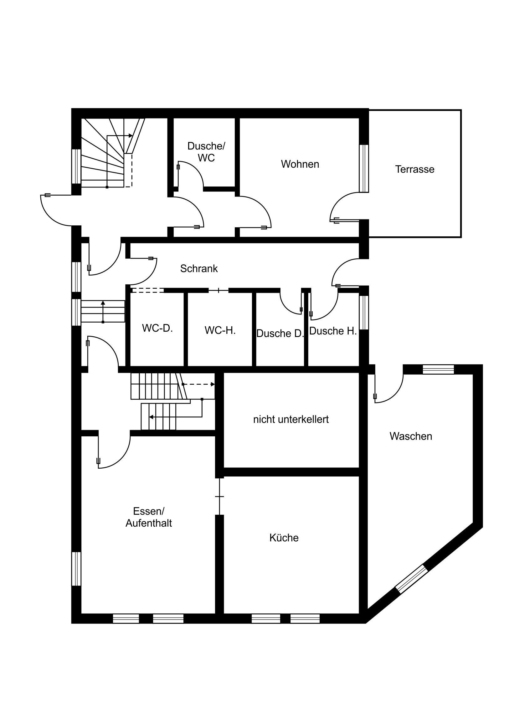
Objektbeschreibung
Dieses freistehende, zweiflügelige Wohngebäude in Ilshofen-Oberaspach wurde ursprünglich vor 1900 errichtet und im Laufe der Zeit mehrfach erweitert und modernisiert. Zuletzt wurde es als Unterkunft für Saisonarbeitskräfte genutzt – mit einfacher, aber zweckmäßiger Ausstattung und zahlreichen Schlafzimmern, Duschzellen, WC-Anlagen und Gemeinschaftsbereichen.
Mit einer Gesamtwohnfläche von rund 231 m² und einem flexiblen Grundriss eignet sich das Objekt ideal für verschiedene Nutzungskonzepte – z. B. als:
• Mitarbeiter- oder Monteurunterkunft
• Mehrgenerationenhaus
• Wohngemeinschaft
• Handwerkerobjekt zur Sanierung mit Ausbaupotenzial
Ein großes Wohngebäude mit solidem Grundgerüst und vielfältigem Potenzial für Eigennutzer, Investoren oder handwerklich Begabte. Wer Fläche, Substanz und Gestaltungsspielraum sucht, findet hier eine spannende Gelegenheit in ländlicher, aber verkehrsgünstiger Lage.
Ausstattung
✔️ Ursprünglich vor 1900 erbaut, laufend erweitert und umgebaut
✔️ 1992/1993 umfassender Um- und Ausbau beider Gebäudeteile
✔️ ca. 2000: neuer Sanitärbereich mit Duschzellen und WCs
✔️ 2008: Einbau moderner Gastherme mit Warmwasserspeicher
✔️ 4 Toiletten, 2 Duschzellen, große Waschbeckenzeile (ca. 4 m)
✔️ Zentralheizung über Gas (im Anbau)
✔️ Elektroinstallation (einfache Ausführung mit 220 V)
✔️ Fenster: teils Holz, teils Kunststoff – größtenteils doppelt verglast
✔️ Bodenbeläge: Holz, PVC, Fliesen, vereinzeltes Parkett
✔️ Holztreppen (teilweise gewendelt), Außentreppe aus Granit
✔️ Teilunterkellert mit historischem Gewölbekeller
✔️ Anbau mit Flachdach, Heiz- und Waschraum
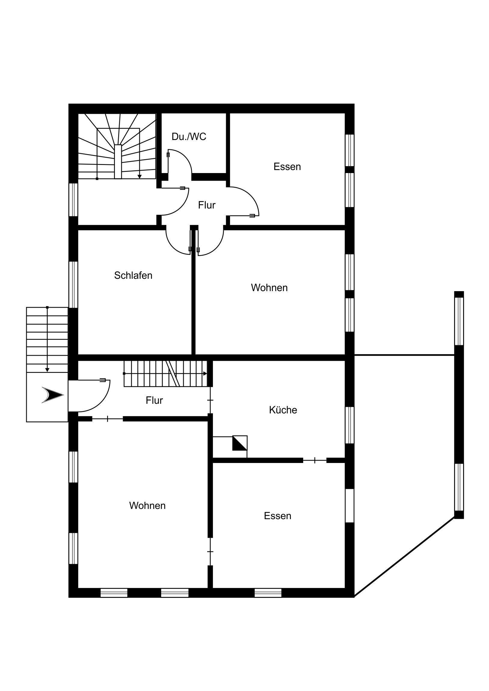
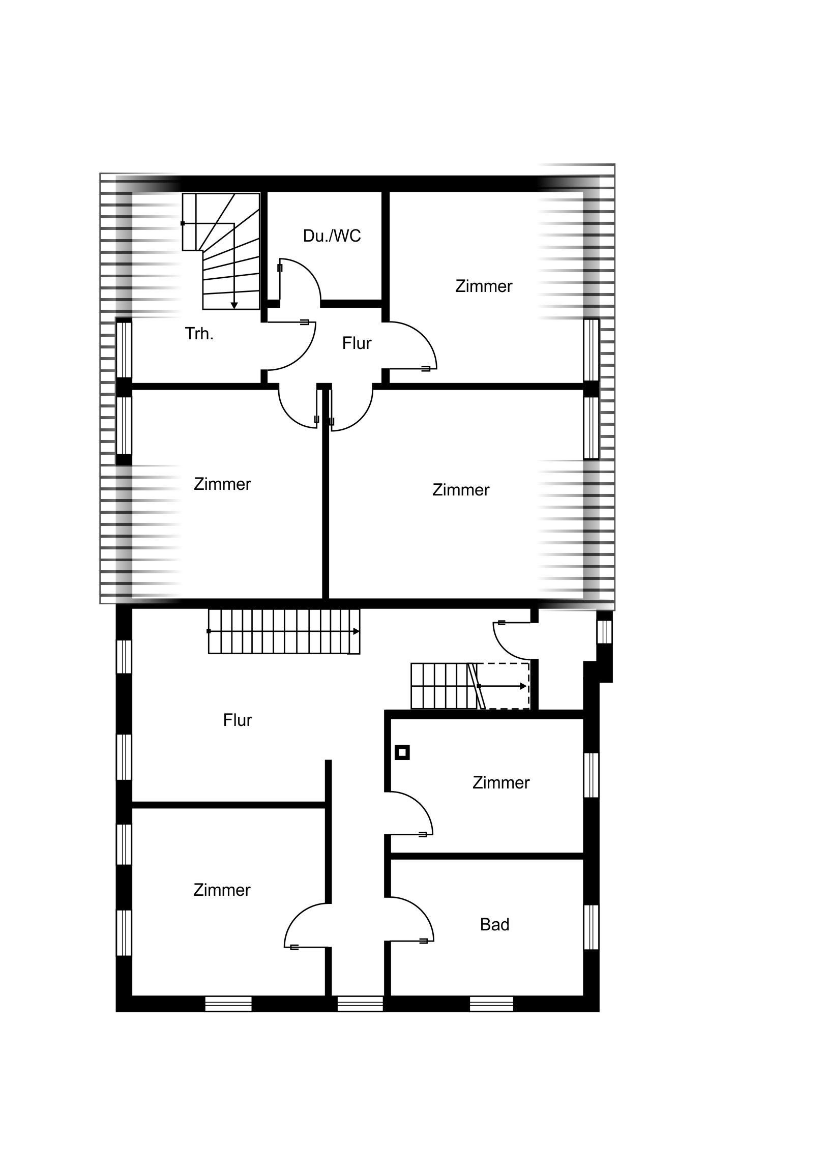
Grundrisse
Lage
Das Wohnhaus befindet sich in zentraler Lage von Ilshofen-Oberaspach, einem Ortsteil der Stadt Ilshofen im Landkreis Schwäbisch Hall. Die ländlich geprägte Umgebung bietet Ruhe, Erholung und gleichzeitig eine gute Anbindung an die regionalen Zentren.
In wenigen Fahrminuten erreichen Sie die Anschlussstellen der Autobahnen A6 (Heilbronn–Nürnberg) über Wolpertshausen oder Kirchberg, wodurch eine schnelle Verbindung nach Schwäbisch Hall, Crailsheim und in die Metropolregion Stuttgart gegeben ist.
Der Ort selbst verfügt über eine intakte Dorfgemeinschaft und liegt eingebettet in die sanfte Hügellandschaft Hohenlohes – ideal für Menschen, die naturnah wohnen oder arbeiten möchten. Einkaufsmöglichkeiten, Schulen, Ärzte und Freizeiteinrichtungen finden sich im nahegelegenen Ilshofen sowie in den Nachbarstädten.
Sonstiges
Besichtigungen sind nach vorheriger Abstimmung möglich. Bitte haben Sie Verständnis, dass wir nur Anfragen mit vollständigen Kontaktdaten (Name, Anschrift, Telefonnummer, E-Mail) berücksichtigen können.
Alle Angaben basieren auf Informationen des Eigentümers. Eine Haftung für deren Richtigkeit und Vollständigkeit wird nicht übernommen.







