Kaufpreis 999.000,00 €
Provision 3,57% inkl. MwSt.
Gesamtfläche ca. 650 qm
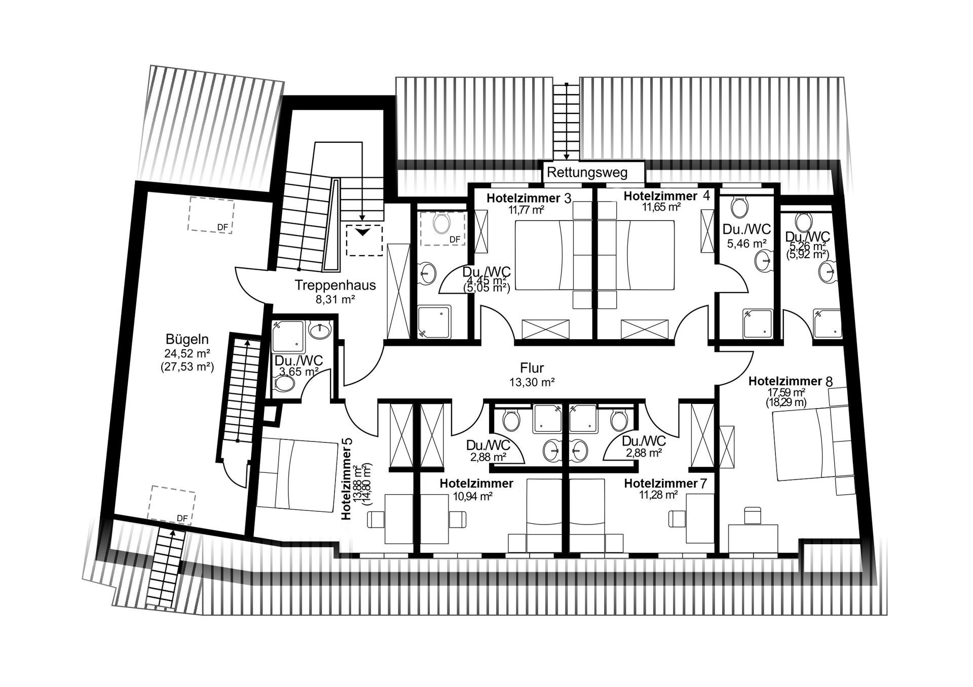
Hotelzimmer 8
Adresse Maybachstraße 43, 74245 Löwenstein
| Objektdaten | |
|---|---|
| Kaufpreis | 999.000 € |
| Gesamtfläche | ca. 650 m2 |
| Plätze Restaurant | ca. 70 |
| Hotelzimmer | 8 |
| Objektdaten | |
|---|---|
| Letzte Sanierung | 2010 |
| Heizungsart | Gas-Heizung |
| Energieausweis | liegt vor |
| Bezugsfrei | nach Absprache |
Objektbeschreibung
Dieses charmante Anwesen im Zentrum von Löwenstein vereint Hotel, Restaurant und eine großzügige Betreiberwohnung unter einem Dach. Ein Haus mit Geschichte, klaren Strukturen und vielen Möglichkeiten – ideal für Betreiber, Investoren oder Käufer, die ein Objekt mit Flexibilität suchen.
Hotel – modernisierte Zimmer für verschiedene Zielgruppen
Das Ober- und Dachgeschoss wurde 2010 umfassend saniert und beherbergen insgesamt acht gut ausgestattete Hotelzimmer, jeweils mit eigenem Bad. Die Zimmer sind hell, gepflegt und sofort nutzbar – perfekt für Urlauber, Wanderer, Geschäftsreisende oder Langzeitgäste.
Restaurant – vielseitige Nutzung oder Umgestaltung möglich
Im Erdgeschoss befindet sich der großzügige Restaurantbereich mit Nebenzimmer, voll ausgestatteter Gewerbeküche, Kühlräumen und Lagerflächen.
Das Restaurant ist derzeit nicht in Betrieb und kann flexibel umgenutzt werden.
Das Objekt bietet hervorragende Umnutzungsmöglichkeiten:
• Umwandlung in zusätzliche Hotelzimmer
• Erweiterung der Wohnflächen
• Schaffung weiterer Appartements oder Ferienwohnungen
• Nutzung als gemeinschaftlicher Aufenthaltsbereich
• Kompletter Rückbau zu reinem Wohnhaus
Damit ist das Objekt sowohl für Gastronomen als auch für reine Hoteliers oder private Eigennutzer interessant.
Betreiberwohnung – Wohnen direkt im Gebäude
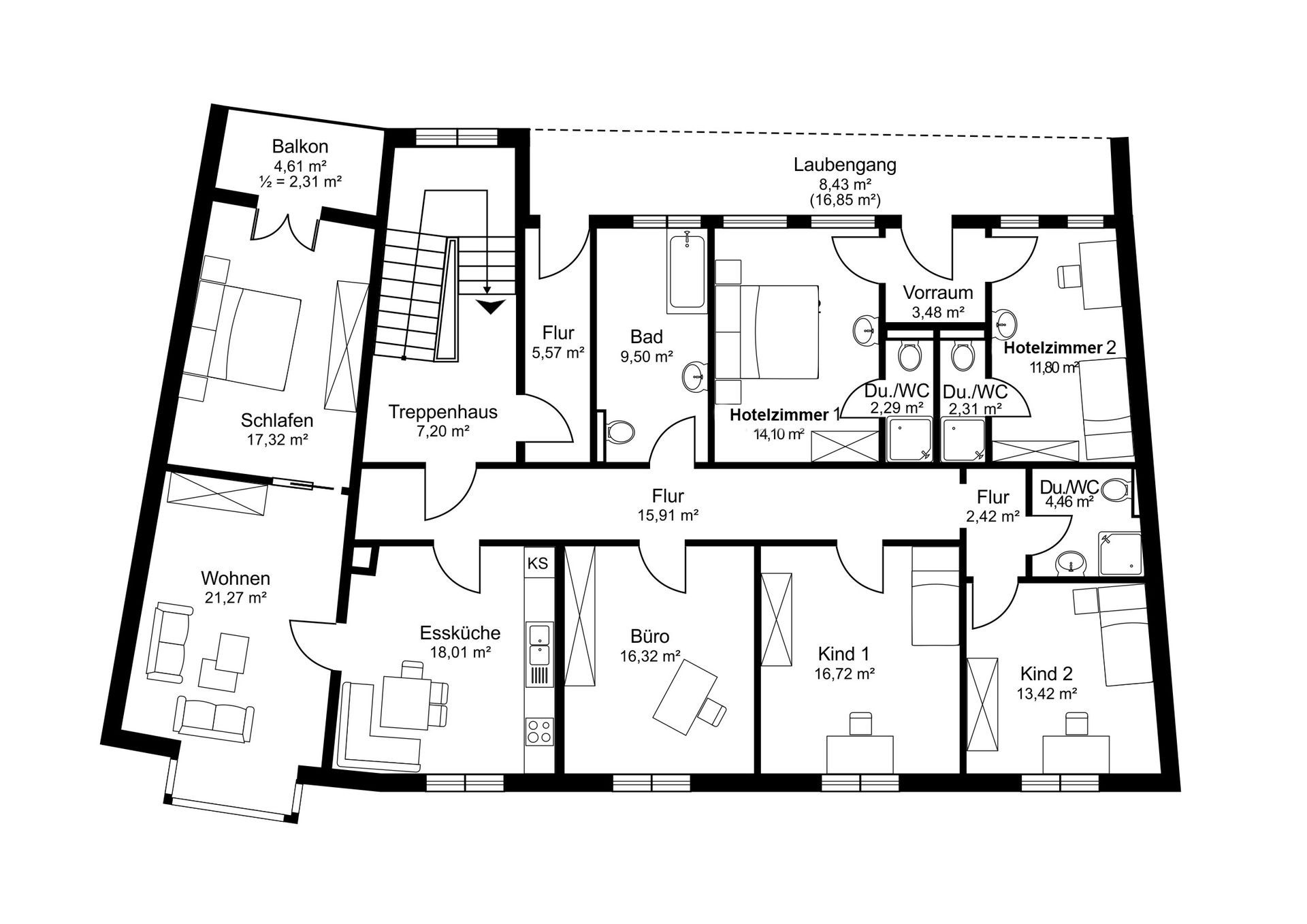
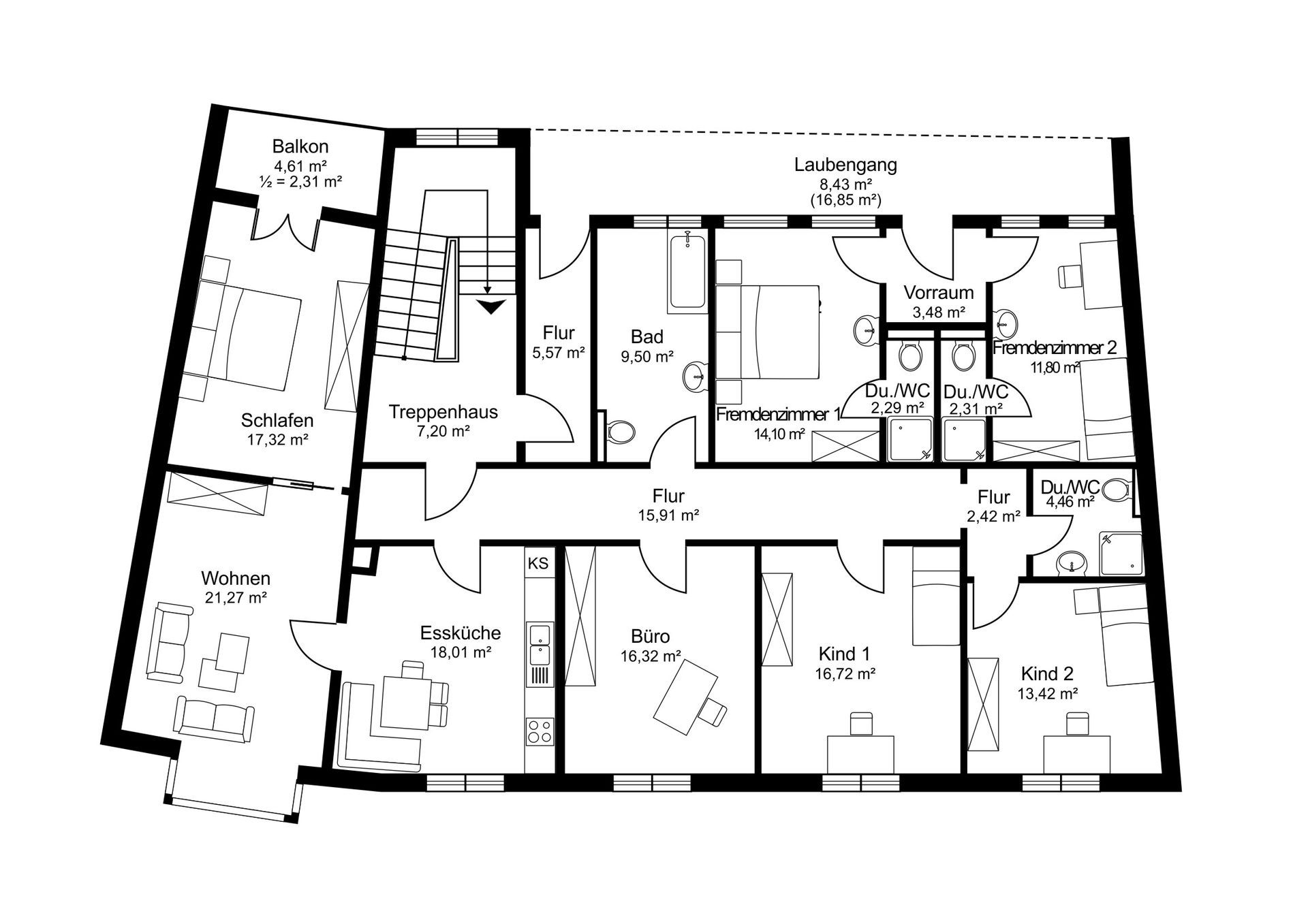
Auf der sanierten Etage befindet sich eine geräumige Betreiberwohnung mit 128 qm Wohnfläche. Diese kann sofort genutzt oder bei Umgestaltung ebenfalls als zusätzliche Wohn- oder Gästeeinheit integriert werden.
Ausbaupotenzial im Dachboden
Der Dachboden bietet weiteres Ausbaupotenzial und könnte mit überschaubarem Aufwand:
• zusätzliche Zimmer schaffen
• eine eigenständige Wohnung ermöglichen
• weitere Wohnfläche zur Kapitalanlage bieten
Damit eröffnet das Haus Raum für Konzepte aller Art – vom erweiterten Hotelbetrieb bis hin zu einem Mehrfamilienhaus.
Gewölbekeller – charakteristische Zusatzfläche
Der historische Gewölbekeller ist ein besonderes Highlight des Hauses. Er eignet sich ideal als Weinlager, für Vorräte oder als atmosphärische Fläche für besondere Ideen.
Fazit – ein Objekt voller Möglichkeiten
Dieses Haus bietet weit mehr als die meisten Immobilien in dieser Kategorie:
• Hotelbetrieb sofort möglich
• Restaurant kann weitergeführt oder komplett umgestaltet werden
• Ausbau des Dachbodens für zusätzliche Wohnfläche
• Umwandlung in reines Wohnhaus oder mehrere Wohnungen möglich
• Zentrale Lage mit hoher Nachfrage
• Saniertes OG & DG
• Viele Nutzungsvarianten für Betreiber, Investoren oder Eigennutzer
Ein Objekt für Menschen mit Vision – und eine seltene Gelegenheit in Löwenstein.
Ausstattung
• Voll ausgestattetes Restaurant mit großem Gastraum
• Separate Nebenzimmer für Gruppen & Veranstaltungen
• Professionelle Gewerbeküche mit Edelstahlbereichen
• Kühlräume, Lagerflächen & Speisekammer
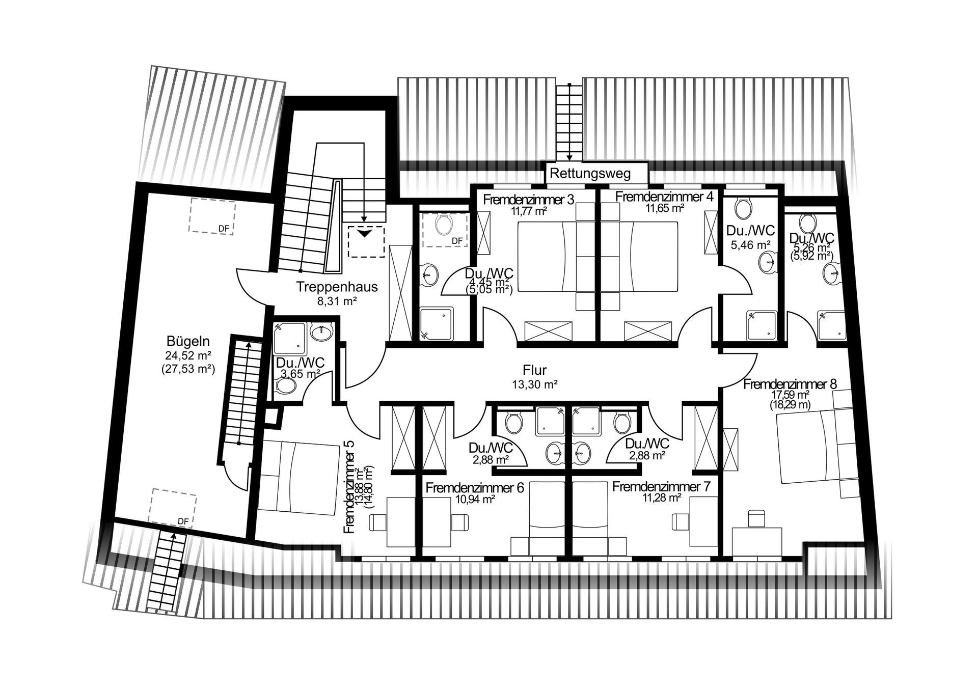
• 8 modernisierte Hotelzimmer (Sanierung OG & DG in 2010)
• Zimmer mit eigenen Bädern / Dusche
• Helle Betreiberwohnung
• Gasheizung
• Gepflegter Gesamtzustand
• Zentrale Lage in Löwenstein
• Sofort nutzbar für Hotel- & Restaurantbetrieb
• EG (Gastro) ca. 285 qm
• OG ca. 192 qm davon 128 qm Betreiberwohnung
• DG ca. 148 qm
Grundrisse
Lage
Die zentrale Lage in Löwenstein macht das Objekt besonders attraktiv:
Nur wenige Minuten zu Geschäften, Bushaltestellen und der beliebten Freizeitregion rund um den Breitenauer See. Die Region zieht Touristen, Wanderer, Biker und Wochenendurlauber an – ein klarer Vorteil für die aktuelle wie auch jede alternative Nutzung.

































