Kaufpreis 489.000,00 €
Provision 3,57% inkl. MwSt.
Fläche 237,17 qm
Grundstück 179 qm
Adresse Maybachstraße 41, 74245 Löwenstein
| Objektdaten | |
|---|---|
| Kaufpreis | 489.000 € |
| Wohnfläche | 237,17 m2 |
| Grundstück | 179 m2 |
| Zimmer | 9 |
| Objektdaten | |
|---|---|
| Baujahr | 1949 |
| Heizungsart | Öl-Heizung |
| Energieausweis | liegt vor |
| Bezugsfrei | nach Absprache |
Objektbeschreibung
Dieses gepflegte Wohn- und Geschäftshaus in Löwenstein bietet eine überzeugende Kombination aus gewerblicher Nutzung und Wohnraum und richtet sich sowohl an Kapitalanleger als auch an Käufer, die Wohnen und Arbeiten sinnvoll miteinander verbinden möchten.
Das Gebäude wurde ursprünglich im Jahr 1949 errichtet und im Laufe der Zeit kontinuierlich instand gehalten sowie 2013 kernsaniert (unter anderem auch die Leitungen, Elektrik und das Dach). Heute präsentiert sich die Immobilie in einem guten, gepflegten Zustand mit klaren Grundrissen und einer funktionalen Aufteilung.
Die Gesamtwohn- und Nutzfläche von ca. 237,17 m² verteilt sich auf drei klar getrennte Einheiten:
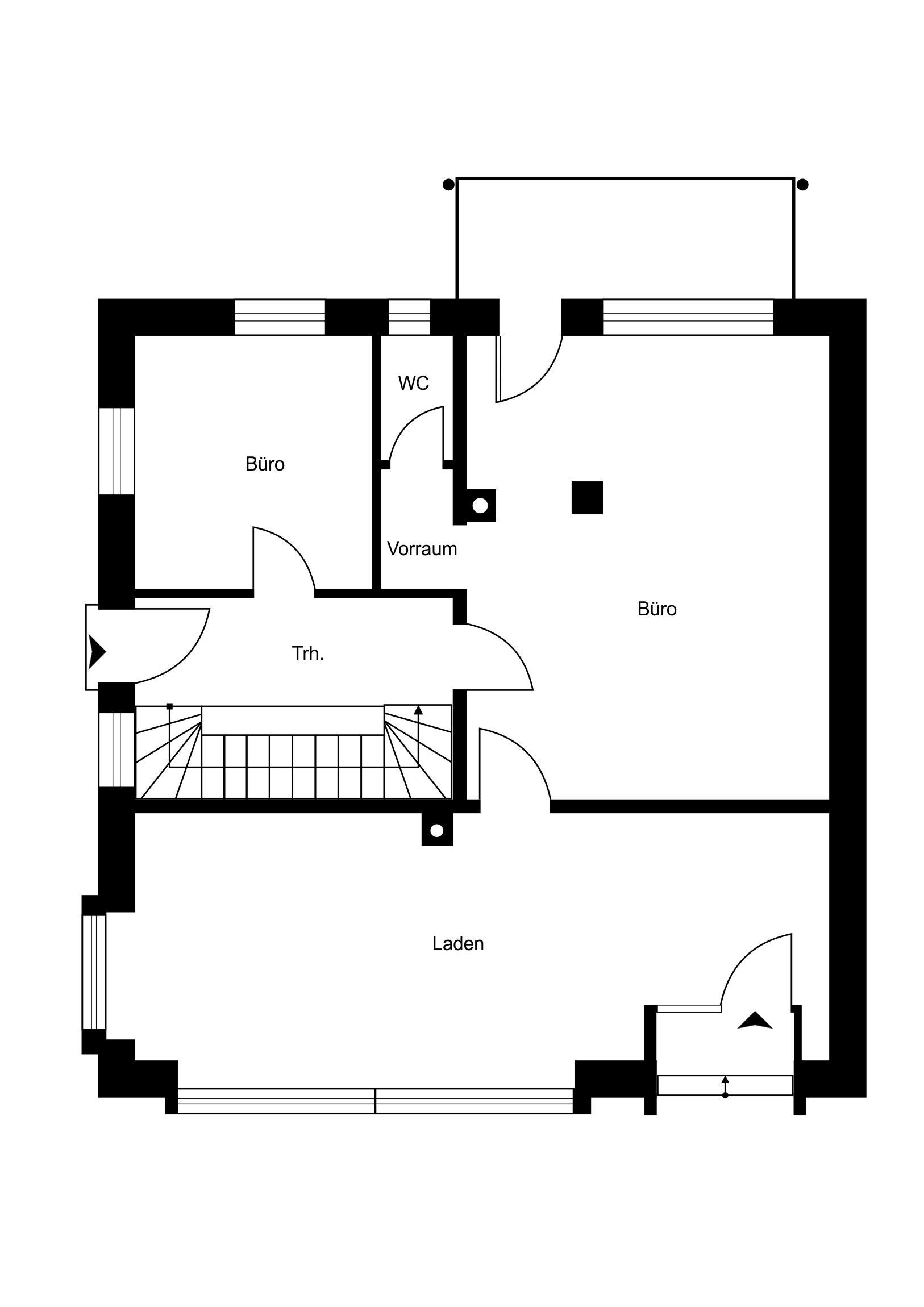
Erdgeschoss – Gewerbeeinheit (ca. 77,21 m²)
Im Erdgeschoss befindet sich eine gut sichtbare Gewerbefläche, die aktuell als Büro genutzt wird. Große Fensterflächen sorgen für angenehmes Tageslicht und eine gute Präsenz zur Straße. Die Einheit eignet sich ideal für Büro-, Dienstleistungs- oder Ladenkonzepte.
Obergeschoss – Wohneinheit (ca. 88,28 m²)
Die Wohnung im Obergeschoss überzeugt durch einen praktischen Grundriss mit Wohnbereich, Küche, Schlaf- und Kinderzimmer, Bad/WC sowie Balkon. Die Räume sind hell und gut nutzbar – ideal für Paare oder kleine Familien.
Dachgeschoss – Wohneinheit (ca. 71,68 m²)
Auch das Dachgeschoss verfügt über eine eigenständige Wohnung mit ähnlicher Aufteilung. Durch die Dachschrägen entsteht ein wohnlicher Charakter, ergänzt durch einen Balkon und eine funktionale Raumstruktur.
Das Haus ist derzeit vermietet und bietet damit eine interessante Grundlage für eine Kapitalanlage. Gleichzeitig lassen sich – je nach Konzept – auch Eigennutzung und Vermietung kombinieren.
Die klare Trennung der Einheiten sowie die Mischung aus Wohnen und Gewerbe sorgen für Flexibilität und eine nachhaltige Nutzungsperspektive.
Mieteinnahmen Kaltmiete:
EG: Kaltmiete 825 €, Nebenkosten 140 €
OG: Kaltmiete 660 €, Nebenkosten 110 €
DG Kaltmiete 480 €, Nebenkosten 140 €
(EG: Mietvertrag läuft zum 01.02.2026 aus)
Ausstattung
• Wohn- und Geschäftshaus mit drei getrennten Einheiten
• Gewerbeeinheit im Erdgeschoss (Büro-/Ladenfläche)
• Zwei Wohneinheiten im Ober- und Dachgeschoss
• Ca. 237,17 m² Wohn- und Nutzfläche
• Balkone im Ober- und Dachgeschoss
• Helle Räume durch großzügige Fensterflächen
• Funktionale, gut nutzbare Grundrisse
• Tageslichtbäder
• Zentralheizung
• kernsaniert 2013 (unter anderem Leitungen, Elektrik, Dach)
• Vermieteter Zustand
• Nutzung als Wohn- und Geschäftshaus oder Kapitalanlage
Grundrisse
Lage
Löwenstein liegt im Landkreis Heilbronn und verbindet naturnahe Umgebung mit einer guten regionalen Anbindung. Die Immobilie befindet sich in zentraler Lage, wodurch Einkaufsmöglichkeiten, Gastronomie und Einrichtungen des täglichen Bedarfs schnell erreichbar sind.
Die Nähe zur Region Heilbronn, Weinsberg und zum Bottwartal macht den Standort sowohl für Bewohner als auch für Gewerbetreibende attraktiv.
















