Kaufpreis 549.999 €
Provision 3,57% inkl. MwSt.
Wohnfläche 377,50 qm
Zimmer 18
Adresse Julie-Pöhler-Straße 7-11, 74565 Crailsheim
| Objektdaten | |
|---|---|
| Kaufpreis | 549.999 € |
| Wohnfläche | 377,50 m2 |
| Nutzfläche | 60,00 m2 |
| Zimmer | 18 |
| Objektdaten | |
|---|---|
| Baujahr | 1960 |
| Heizungsart | Fernwärme |
| Energieausweis | liegt vor |
| Bezugsfrei | nach Absprache |
Objektbeschreibung
In gefragter Wohnlage von Crailsheim, in der Julie-Pöhler-Straße, bietet sich eine attraktive Projektchance für Bauträger, Projektentwickler oder Investoren mit eigener Ausbaukompetenz.
Zum Verkauf stehen sechs genehmigte Dachgeschosswohnungen in drei gepflegten Mehrfamilienhäusern aus dem Baujahr 1960. Die Gebäude befinden sich in einem gewachsenen Wohnumfeld mit stabiler Mieterstruktur und guter Infrastruktur.
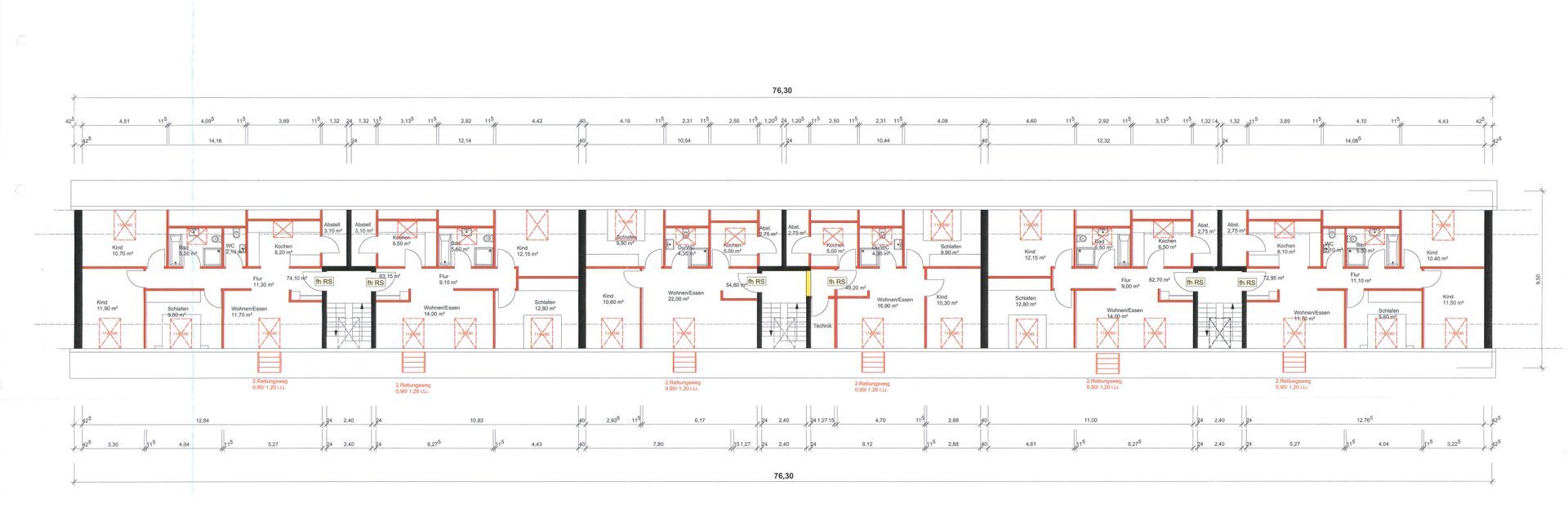
Die genehmigte Gesamtwohnfläche im Dachgeschoss beträgt ca. 377,5 m².
Geplant sind:
• 4 x 3-Zimmer-Wohnungen
• 2 x 4-Zimmer-Wohnungen
Teilweise sind im Dachgeschoss bereits ältere Leitungen und Anschlüsse vorhanden, die als Grundlage für den weiteren Ausbau genutzt werden können. Die Fertigstellung und individuelle Ausgestaltung obliegen dem Erwerber.
Eine Teilungserklärung wurde erstellt.
Zusätzlich gehören 6 Außenstellplätze zum Angebot.
Projektpotenzial
Das Objekt bietet mehrere strategische Möglichkeiten:
• Fertigstellung und anschließende Vermietung
• Einzelabverkauf der Wohnungen
• Kombination aus Bestandshaltung und Teilverkauf
Durch die bereits genehmigte Planung reduziert sich das Entwicklungsrisiko erheblich. Es handelt sich nicht um eine Ideenskizze, sondern um ein umsetzbares Projekt mit klarer Struktur.
Gebäude & Umfeld
Die Mehrfamilienhäuser präsentieren sich gepflegt und in solider Bauweise. Auf den Dächern befinden sich Photovoltaikanlagen. Das Umfeld ist geprägt von Wohnbebauung mit viel Grün, Spielbereichen und einer angenehmen Nachbarschaft.
Einkaufsmöglichkeiten, darunter ein großer Lebensmittelmarkt, befinden sich in unmittelbarer Nähe. Ebenso sind Busanbindung und die Anbindung an das Stadtzentrum schnell erreichbar.
Die Kombination aus ruhiger Wohnlage und guter Infrastruktur sorgt für eine stabile Nachfrage nach 3- und 4-Zimmer-Wohnungen.
Grundrisse
Lage
Crailsheim ist ein wirtschaftlich stabiler Standort mit kontinuierlicher Nachfrage nach Wohnraum. Die Julie-Pöhler-Straße liegt in einem gewachsenen Wohngebiet mit guter Nahversorgung, Schulen und Freizeiteinrichtungen in erreichbarer Nähe.
Die Verkehrsanbindung Richtung Innenstadt sowie überregionale Straßen ist gut.

















